De Saint-Louis
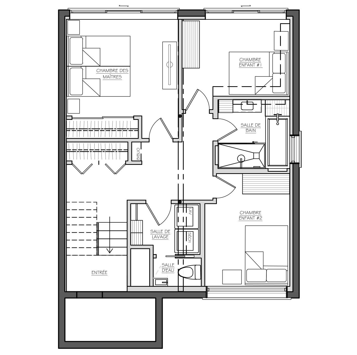
Nos clients se trouvaient à la croisée des chemins : rénover ou déménager. Ils ont confié à notre équipe la mission de réaménager complètement deux étages de leur maison. Nous avons réussi à leur montrer le potentiel caché de leur habitation et à les convaincre de rester. Chaque pied carré a été repensé pour accommoder cette famille de deux adultes et deux adolescents. L’ajout d’une troisième chambre au sous-sol et la subdivision des pièces de lavage/soins personnels facilitent désormais la cohabitation et favorisent l’intimité pour tous. Le style éclectique, mélangeant divers éléments et les goûts contrastés du couple, apporte une touche unique à leur nouvel espace de vie.
Superficie
1398
pc
Emplacement
Ville de Québec
Année de réalisation
2025























